Einheitennummer 2595
Leverkusen

Freistehendes, modernisiertes Einfamilienhaus in Feldrandlage mit Pool und Saunen

Haus
Kaufpreis 849.000 €
211,66 m² Wohnfläche
6 Zimmer
Verfügbar ab sofort

Beschreibung

Dieses freistehende Einfamilienhaus (Fertighaus mit massiv erbautem Keller) aus dem Jahr 1973 befindet sich auf einem großzügigen Grundstück in direkter Feldrandlage von Leverkusen. In den vergangenen Jahren wurde die Immobilie umfassend modernisiert und verbindet heute solide Bausubstanz mit zeitgemäßer Ausstattung, moderner Technik und einem hohen Maß an Privatsphäre.

Bereits beim Betreten entsteht ein stimmiger erster Eindruck.
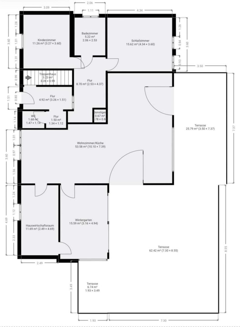
Das Erdgeschoss ist durchgehend mit anthrazitfarbenen Fliesen ausgestattet, die in Kombination mit der Fußbodenheizung für eine klare und ruhige Atmosphäre sorgen. Vom Eingangsbereich aus gelangt man durch eine Glastür in den zentralen Wohnbereich.

Rechts öffnet sich der großzügige, offen gestaltete Wohn-, Ess- und Küchenbereich mit einer Gesamtfläche von rund 50 m². Die moderne Hochglanzküche überzeugt mit hochwertigen Einbaugeräten und einer zentralen Kochinsel mit integriertem Kochfeld. Zusätzlich verfügt die Insel über eine Teppanyaki-Grillplatte, die vielseitige Zubereitungsmöglichkeiten bietet und das Kochen zu einem besonderen Erlebnis macht.
Eine integrierte Kaffeemaschine sowie eine Mikrowelle sind elegant in das Küchendesign eingebunden. Direkt angrenzend befindet sich ein Hauswirtschaftsraum mit möglichem Küchenanschluss, der zusätzliche Arbeits- und Staufläche bietet.

Der Ess- und Wohnbereich schließt sich offen an.
Großzügige bodentiefe Fensterflächen sorgen für viel Tageslicht und geben den Blick in den Garten frei.
Vom Wohnzimmer aus führen zwei Balkontüren direkt nach draußen. Zusätzlich besteht ein weiterer Zugang über den angrenzenden beheizbaren Wintergarten, der ebenfalls in den Garten überleitet und den Wohnraum besonders in den Übergangszeiten angenehm erweitert.

Der Kamin setzt einen wohnlichen Akzent, während dimmbare Deckenspots eine flexible Lichtstimmung ermöglichen. Elektrische Rollläden sorgen zusätzlich für Komfort.

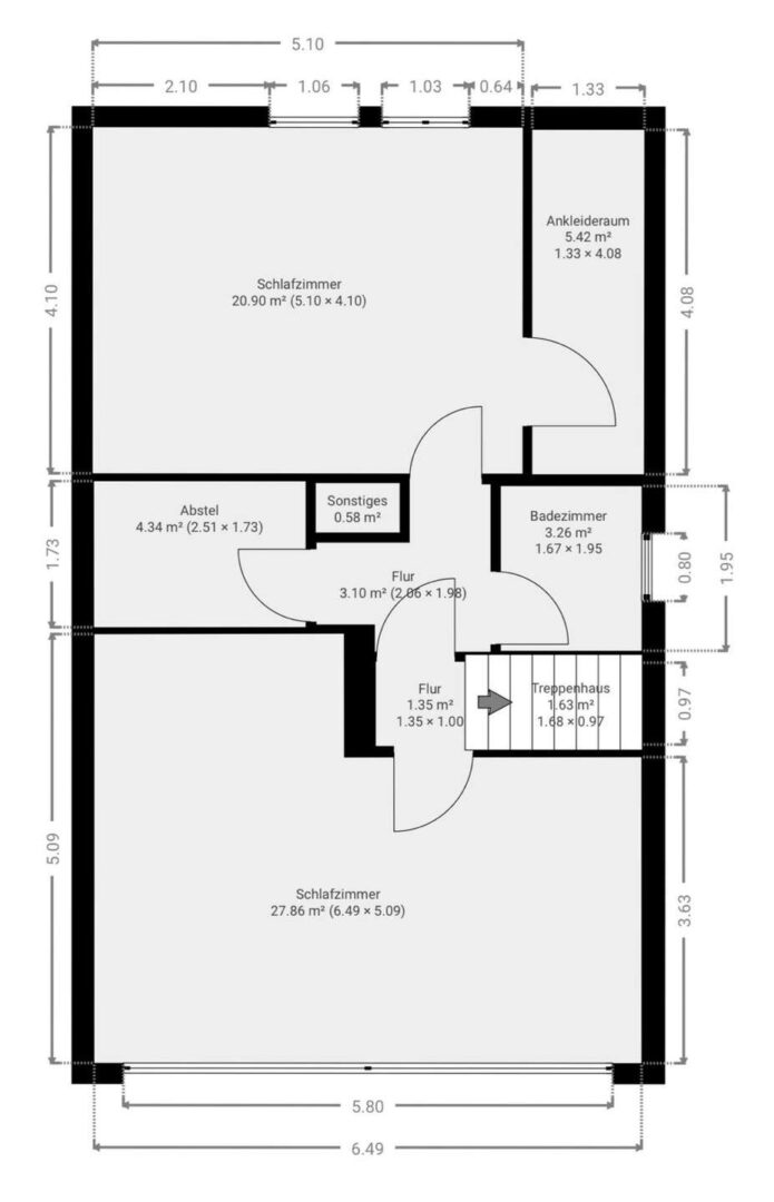
Auf dieser Ebene befinden sich außerdem zwei Schlafzimmer sowie das Hauptbadezimmer mit Fenster, bodengleicher Dusche mit Sitzgelegenheit, Doppelwaschbecken und einer japanischen Toilette. Ein in die Wand integrierter Stauraumschrank sorgt für zusätzlichen Platz und eine ruhige Optik.

Über die Treppe erreicht man das Dachgeschoss. Diese Ebene bietet zusätzlichen, vollwertig nutzbaren Wohnraum und eignet sich ideal als separater Rückzugsbereich.

Ein großzügiger Raum auf der linken Seite überzeugt durch eine außergewöhnliche Da-Vinci-Fensterfront im Stil eines Atelier- bzw. Galerieraums. Die großflächigen Fenster lassen besonders viel Tageslicht in den Raum und schaffen eine helle, inspirierende Atmosphäre. Der Raum gilt als vollwertiger Wohnraum und eignet sich ideal als Atelier, Arbeitsbereich oder kreativer Rückzugsort.

Ergänzt wird diese Ebene durch ein weiteres Schlafzimmer. Zusätzlich befindet sich hier ein separater Ankleide- bzw. Stauraumbereich mit Tür, der zusätzlichen Platz für Kleidung und Aufbewahrung bietet. Darüber hinaus stehen ein Badezimmer, ein separates Gäste-WC sowie ein zusätzlicher Abstellraum zur Verfügung. Gedämmte Dachflächen und weiterer Stauraum im Kriechbereich ergänzen diese Ebene funktional.
Durch die durchdachte Raumaufteilung bietet das Haus die Möglichkeit, zwei nahezu eigenständige Wohnbereiche zu nutzen – einen im Erdgeschoss und einen im Dachgeschoss.
Dadurch ergeben sich vielfältige Nutzungsmöglichkeiten, etwa eine eigene Etage für Kinder, ein separater Bereich für Gäste oder die Kombination von Wohnen und Arbeiten unter einem Dach.
Gleichzeitig bleibt auf beiden Ebenen ausreichend Privatsphäre erhalten.

Das Untergeschoss erweitert die Wohnqualität deutlich und bietet vielseitige Nutzungsmöglichkeiten.
Das Kellergeschoss ist durchgehend mit hellgrauen Fliesen ausgestattet.

Hier befindet sich ein großzügiger Wellnessbereich. In dem Badezimmer im Untergeschoss befinden sich eine Whirlpool-Badewanne sowie eine Dusche mit integrierter Dampfsauna-Funktion inklusive Sitzgelegenheit, Licht- und Lautsprecherfunktion, wodurch eine angenehme Wellnessatmosphäre im eigenen Zuhause entsteht.

Angrenzend an den großzügigen Hobbyraum befindet sich zudem eine klassische Holzsauna, die den Wellnessbereich zusätzlich ergänzt.

Darüber hinaus stehen im Untergeschoss zwei Büroräume zur Verfügung.
Ein kleinerer Raum sowie ein besonders großzügiger Raum eignen sich ideal als Homeoffice, Fitness- oder Hobbybereich. Von hier aus besteht ebenfalls ein direkter Zugang in den Garten.

Technisch ist das Haus umfassend ausgestattet. Installiert ist ein professionelles Alarmsystem des Herstellers Jablotron mit Öffnungsmeldern (Fenster und Türen) sowie Bewegungsmeldern.
Die Alarmanlage verfügt über mehrere Paniktaster und ist mit einem Sicherheitsdienst verbunden.

Der Sicherheitsservice ist derzeit noch bis März 2027 aktiv.
Im Alarmfall erfolgt eine sofortige Übermittlung innerhalb von Sekunden an den Sicherheitsdienst, sodass ein Sicherheitsmitarbeiter aus der näheren Umgebung schnell reagieren kann.
Zusätzlich arbeitet das System mit individuell definierbaren Codewörtern, wodurch auch diskrete Notrufe möglich sind.

Der Garten bildet das Herzstück des Hauses.
Direkt angrenzend an freie Felder genießen Sie hier dauerhaft einen weiten Blick ins Grüne.
Hinter dem großzügigen Grundstück beginnt bereits der Außenbereich bzw. das angrenzende Landschaftsgebiet, was die naturnahe Lage zusätzlich unterstreicht.

Der Pool ist eingefriedet und mit einer stabilen Rollabdeckung ausgestattet, die auch eine hohe Belastbarkeit aufweist. Zusätzlich befindet sich um den Pool herum ein separater Sicherheitszaun mit Zugangstür, wodurch insbesondere Familien mit Kindern den Garten flexibel und sicher nutzen können.

Selbst wenn die Poolabdeckung geöffnet ist, bleibt der Zugang zum Wasser kontrollierbar.
Die Poolabdeckung ist zusätzlich mit einer Zeitschaltfunktion ausgestattet.

Die Highlights

Ausstattung Gehoben
Gartennutzung Ja
Küche ausgestattet mit Ebk, Offen, Pantry
Gäste WC Ja
Abstellraum Ja
Verfügbar ab sofort

Ausstattung

Balkon
Ja
Stellplatz
Ja
Ausstattung
Gehoben
Dusche
Ja
Bad mit Badewanne
Ja
Bad mit Fenster
Ja
Einbauküche
Ja
Fliesen
Ja
Parkett
Ja
Kamin
Ja
Garage
Ja
Carport
Ja
Parken im Freien
Ja
Garten
Ja
Sauna
Ja
Pool
Ja
Wintergarten
Ja
Keller
Ja
Abstellraum
Ja
Gäste WC
Ja

Weitere Infos zur Ausstattung

Wohnen & Innenausstattung
• Anthrazitfarbene Fliesen im Erdgeschoss
• Fußbodenheizung
• Kamin im Wohnbereich
• Große Fensterfronten mit drei Gartenzugängen
• 3-fach verglaste Fenster
• Dimmbare Deckenspots
• Wintergarten
• Glasfaseranschluss (freigeschaltet)

Küche
• Moderne Einbauküche des Herstellers Marquard
• Kochinsel mit integriertem Kochfeld
• Teppanyaki-Grillplatte in der Kücheninsel
• Integrierte Kaffeemaschine
• Integrierte Mikrowelle
• Hauswirtschaftsraum mit möglichem Küchenanschluss
• Zusätzliche Arbeits- und Staufläche

Badezimmer
• Modernisiertes Hauptbad mit Fenster
• Bodengleiche Dusche
• Doppelwaschbecken
• Japanische Toilette
• Integrierter Wandschrank (Stauraum)
• Wellnessbad im Untergeschoss
• Whirlpool-Badewanne
• Dusche mit integrierter Dampfsauna-Funktion, Licht- und
Lautsprecherfunktion
• Weiteres Badezimmer im Dachgeschoss
• Separates Gäste-WC

Wellness & Freizeit
• Große Sauna im Untergeschoss
• Separater Fitness-/Hobbyraum möglich
• Direkter Gartenzugang aus dem Untergeschoss
• Eingefriedeter Poolbereich
• Pool mit stabiler Jalousieabdeckung

Sicherheit & Technik
• Professionelle Alarmanlage (Jablotron-System)
• 3 Paniktaster (Wohnzimmer, Flur, Schlafzimmer)
• Tür-/ Fensteröffnungsmelder
• Bewegungsmelder
• Vernetzte Rauchmelder in Schlafräumen
• Innen- und Außenkameras (Außenkamera BSI geprüft)
• Smart-Home-Funktionen
• Sicherheitsservice aktiv bis März 2027
• Individuell definierbare Codewort-Funktion
• Rückstausicherung mit Rückstauklappe und Pumpensystem
• Vorbereitung für Netzwerkanschlüsse im Außenbereich
• Vorbereitung für Pool-Wärmepumpe

Außenbereich
• Direkt angrenzende Feldrandlage
• XXL-Garten
• Mehrere Terrassenbereiche
• Separate Grillecke
• Spielbereich
• Wasseranschlüsse im Garten
• Vorbereitete Rasenbewässerung
• Eingezäuntes Gehege angrenzend (ehemaliges Rehegehege)
• Weinreben, Rosen und gewachsene Bepflanzung
• Pool mit Rollabdeckung / Zeitschaltfunktion
• Zusätzlicher Sicherheitszaun mit Zugangstür um den Poolbereich
• Garage & überdachter Stellplatz vor der Garage
• Zusätzliches Carport
• Stellplatz vor dem Rolltor

Insgesamt Stellmöglichkeiten für bis zu 4 Fahrzeuge

Abstrakte Grafik mit einem weißen, abgerundeten Rechteck links, das ein kleines braunes Quadrat enthält, und einer großen braunen Fläche rechts mit unregelmäßigem grauem Bereich darunter.

Finanzhaus Deutschland

Objektdetails

Haus
Objektzustand Neuwertig
Ausstattung Gehoben
Baujahr 1973
Verfügbar ab sofort

Flächen

211,66 m² Wohnfläche
3.100,00 m² Grundstücksfläche
6 Zimmer
4 Badezimmer
4 Schlafzimmer
3 Etagen gesamt

Preis, Kosten (& Einnahmen)

849.000 € Kaufpreis
Käuferprovision von 3% zggl. 19% MwSt

Energie & Heizung

Energieausweisliegt vor
Energie­ausweistypVerbrauchsausweis
PrimärenergieträgerGas
HeizungsartFußbodenheizung
HeizungsartFußbodenheizung

Lage

Die Immobilie befindet sich in einer ruhigen, gewachsenen Wohngegend von Leverkusen.
Das Umfeld ist geprägt von gepflegten Wohnhäusern und bietet eine angenehme, einladende Atmosphäre.

Die Anbindung an den öffentlichen Nahverkehr ist hervorragend: Eine Bushaltestelle ist nur etwa 3 Gehminuten entfernt. Der Bahnhof Leverkusen Mitte ist in ca. 5 Minuten mit dem Auto erreichbar und bietet Anschluss an den Regional- und S-Bahn-Verkehr mit direkten Verbindungen nach Köln und Düsseldorf. Der Bahnhof Leverkusen-Opladen liegt ca. 10 Autominuten entfernt und dient als weiterer wichtiger Verkehrsknotenpunkt.

Für Berufspendler ist die Lage ideal: Die Autobahnen A1, A3 und A59 sind in nur 5 bis 10 Minuten mit dem Auto erreichbar und gewährleisten schnelle Verbindungen nach Köln, Düsseldorf und ins Ruhrgebiet. Die Flughäfen Köln/Bonn und Düsseldorf sind jeweils in ca. 25 bis 40 Minuten erreichbar.

Alle Einrichtungen des täglichen Bedarfs befinden sich in der Nähe: Supermärkte, Apotheken und Banken sind in 3 bis 5 Minuten erreichbar, Schulen und Kindergärten in 5 bis 10 Minuten. Auch Ärzte, Restaurants und Cafés liegen in fußläufiger oder kurzer Fahrdistanz.

Insgesamt bietet die Lage eine perfekte Kombination aus ruhigem Wohnen, guter Infrastruktur und schneller Anbindung – ideal für Familien, Berufspendler oder alle, die ein komfortables Wohnumfeld suchen.

Sonstiges

Es handelt sich um ein Fertighaus mit massiv gebautem Keller.

Alle Angaben zu diesem Verkaufsobjekt basieren auf Informationen des Verkäufers oder beteiligter Dritter.
Sie werden von der Finanzhaus Deutschland GmbH ohne Gewähr für deren Richtigkeit und Vollständigkeit, jedoch nach bestem Wissen und Gewissen, weitergegeben.
Irrtum, Änderungen und Zwischenverkauf bleiben vorbehalten.

Abstrakte Grafik mit einem weißen, abgerundeten Rechteck links, das ein kleines braunes Quadrat enthält, und einer großen braunen Fläche rechts mit unregelmäßigem grauem Bereich darunter.

Finanzhaus Deutschland