Einheitennummer 2473
Heiligenhaus

Penthouse Feeling mit Balkon // Erstbezug Neubau-Niveau // 3 Schlafzimmer

Wohnung
Kaufpreis 290.000 €
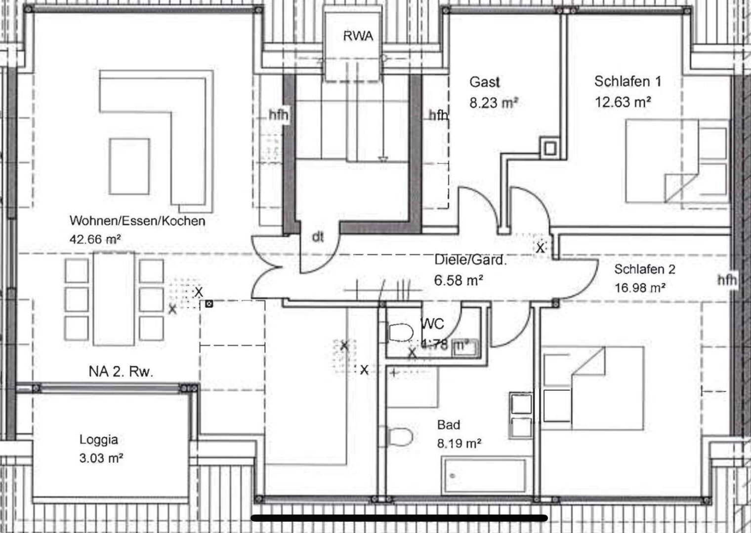
100,08 m² Wohnfläche
4 Zimmer
Energieeffizienzklasse D
Verfügbar ab sofort

Beschreibung

Diese lichtdurchflutete Dachgeschosswohnung wurde komplett neu hergestellt in 2025.
Dadurch profitieren Sie von einer deutlich verbesserten Raumaufteilung und einem modernen Wohngefühl.

Der große Wohn- und Essbereich ist offen gestaltet und bietet zahlreiche Möglichkeiten für eine individuelle Einrichtung. Der vorgesehene Küchenbereich eignet sich ideal für eine hochwertige Einbauküche – eine Kücheninsel lässt sich problemlos einplanen und ergänzt den Raum optimal.
Die großen Fenster sorgen für viel Tageslicht und führen direkt auf den kleinen Balkon.

Das Tageslichtbad wurde vollständig erneuert und hochwertig ausgestattet. Zeitlose Fliesen, eine geräumige, ebenerdige Dusche sowie eine Fußbodenheizung im Badezimmer sorgen für angenehmen Komfort.
Ergänzend steht ein separates Gäste-WC zur Verfügung.

Mit insgesamt 4 Zimmern bietet die Wohnung vielseitige Nutzungsmöglichkeiten:
– Schlafzimmer
– Homeoffice
– Gästezimmer
– Ankleide oder Hobbyraum

Der Balkon ist mit Strom und Beleuchtung ausgestattet und eignet sich ideal als ruhiger Außenbereich für entspannte Stunden.

Zum Angebot gehört außerdem eine Garage – die zweite Garage von oben (siehe Bilder) – die Ihnen praktischen Stauraum und einen wettergeschützten Stellplatz bietet.

Eine modern sanierte Wohnung, die durch ihre hochwertige Ausstattung, ein freundliches Wohnambiente und flexible Raumgestaltung überzeugt.

Die Highlights

Ausstattung Gehoben
3,03 m² Fläche Balkon/Terrasse
Gäste WC Ja
Verfügbar ab sofort

Ausstattung

Balkon
Ja
Loggia
Ja
Stellplatz
Ja
Ausstattung
Gehoben
Dusche
Ja
Bad mit Fenster
Ja
Fliesen
Ja
Garage
Ja
Keller
Ja
Gäste WC
Ja

Weitere Infos zur Ausstattung

• Neuerstellung Erstbezug Dachgeschosswohnung
•Gaubenausbau für mehr Wohnfläche und Licht
•moderner, offener Wohn- und Essbereich
•heller Küchenbereich – ideal für eine Einbauküche mit Kücheninsel
•Tageslichtbad mit zeitlosen Fliesen (großes Format), großer begehbarer Dusche und Fußbodenheizung (nur im Bad)
•separates Gäste-WC
•drei flexibel nutzbare Zimmer, z. B. Schlafzimmer, Homeoffice, Gästezimmer, Ankleide oder Hobbyraum
•kleiner Balkon mit Strom- und Lichtanschluss
•hochwertige Materialien und modernes Erscheinungsbild
•helles Wohnambiente durch große Fensterflächen
•Garage
•ruhige, gewachsene Wohnlage in Heiligenhaus-Hetterscheidt
•nahe am Abtskücher Teich und umliegenden Grünflächen
•kurze Wege zu Einkaufsmöglichkeiten, Apotheken, Ärzten, Schulen und Kindergärten
•gute Anbindung über die A44 nach Düsseldorf, Essen und Wuppertal

Finanzhaus Deutschland

Objektdetails

Wohnung
Objektzustand Neuwertig
Ausstattung Gehoben
Baujahr 1962
Verfügbar ab sofort

Flächen

100,08 m² Wohnfläche
100,08 m² Nutzfläche
4 Zimmer
2 Badezimmer
3 Schlafzimmer
4. Etage
4 Etagen gesamt
3,03 m² Balkon/Terrasse Fläche

Preis, Kosten (& Einnahmen)

290.000 € Kaufpreis
20.000 € Garagenstellplatzpreis
Käuferprovision von 3% zzgl. MwSt

Energie & Heizung

EnergieeffizienzklasseD
EnergieeffizienzklasseD
HeizungsartZentralheizung
HeizungsartZentralheizung
A+
A
B
C
D
E
F
G
H

Lage

Die Wohnung liegt in Heiligenhaus-Hetterscheidt, einem ruhigen und beliebten Wohngebiet mit angenehmer Nachbarschaft. In unmittelbarer Nähe befindet sich der Abtskücher Teich mit seinen umliegenden Wald- und Grünflächen – ein attraktives Naherholungsgebiet für Spaziergänge, Joggingrunden oder kurze Auszeiten in der Natur.
Die Nachbarschaft besteht überwiegend aus Einfamilienhäusern.

Die Versorgung im Alltag ist sehr gut:
Supermärkte, Bäckereien, Apotheken, Ärzte sowie kleinere Geschäfte sind in wenigen Minuten erreichbar. Auch Kindergärten, Grundschulen und weiterführende Schulen befinden sich im direkten Umfeld und sind schnell erreichbar, was den Standort besonders familienfreundlich macht.

Die verkehrliche Anbindung ist ebenfalls komfortabel. Über die nahegelegene A44 gelangen Sie zügig nach Düsseldorf, Essen oder Wuppertal. Buslinien verbinden Hetterscheidt zuverlässig mit dem Zentrum von Heiligenhaus und den umliegenden Städten.

Eine Lage, die durch ihre Kombination aus Naturnähe, guter Infrastruktur und schneller Erreichbarkeit überzeugt.

Sonstiges

• Eine Garage kann auf Wunsch gegen Aufpreis mit erworben werden (20.000€).
• Alle Angaben sind ohne Gewähr und basieren auf den uns vorliegenden Informationen des Verkäufers.

Finanzhaus Deutschland